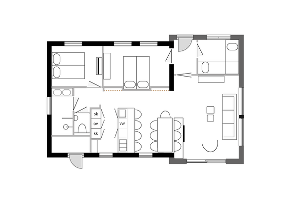
Indeling
Deze moderne, vrijstaande vakantievilla is geschikt voor maximaal 6 personen. Met een ruime living met grote open keuken met kookeiland heb je voldoende ruimte en luxe om heerlijk te genieten van je vakantie. De gehele woonkamer heeft vloerverwarming en in het zitgedeelte staat een smart-tv. In de luxe open keuken kun je een heerlijk kopje koffie of thee zetten, de vaatwasser wast voor je af en in de oven maak je de lekkerste ovenschotels. Door de praktische, doordachte indeling heeft het vakantiehuis een ruim karakter maar alles zit wel op de begane grond. Er zijn drie slaapkamers, waarvan 1 slaapkamer met twee enkele bedden (kun je wel tegen elkaar zetten), een slaapkamer met een 2-persoons boxspring en 1 slaapkamer is uitgerust met een cross-over stapelbed, erg leuk voor de kinderen! Ook is er een ruime badkamer met grote inloopdouche en dubbele wastafel. Het toilet is bewust apart naast de badkamer gemaakt.
Buiten
Het vakantiehuis staat op een zeer ruime kavel van 1000m2 met ruimte voor 2 auto's bij het huis. Er is voldoende privacy en je kunt heerlijk genieten in de ruime tuin. Met een gemeubileerd terras zit je zo lekker in het zonnetje. In de tuin bevinden zich allerlei verstopplekjes voor de kinderen, een natuurlijke speeltuin en een trampoline.
Extra
Er is een oplaadpaal voor de elektrische auto waar je tegen vergoeding gebruik van kunt maken. En je kunt uiteraard gratis gebruikmaken van wifi.
Ook is er een schuur waar je bijvoorbeeld fietsen in kunt plaatsen. Er zijn twee stopcontacten om e-bikes op te laden.
We doen er alles aan om je verblijf zo comfortabel mogelijk te maken.

